Designed based on the balance between massing and spaces. The villa contains multi spaces for guests, families and friends.
The choice of materials is suitable to the location and availability in the local market



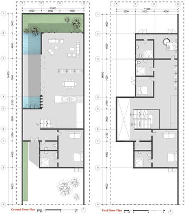
Linked houses were proposed to fulfill a new level of lifestyle that is absent in the heart of UK.
The main concept is to develop an arrangement of shapes to appear in balanced and harmonic layout. Some green elements is proposed along with a perfect climate study to provide a maximum level of thermal comfort for the residents.
As it appears, the design take into consideration the pedestrian friendly roads straight away accessible from the roads as what most typical terraces houses in UK are.




Designed based on the balance between massing and spaces. The villa contains multi spaces for guests, families and friends. The choice of materials is suitable to the location and availability in the local market.




A minimalist tropical concept has been used in designing this terrace house. The picture illustrates the frontage which consist a foldable louvers engaged with the straight and clean lines of the concrete facade. A single parking space is available in the front side with a tropical architecture experience in the proposed landscaping approach.
Front entrance has been designed with tropical architectural experience. Overhang cover from the first floor works as shelter from sun and rain. Floor to ceiling glassing wall has been placed at the foyer space in order to provide natural lighting and ventilation, as well as maximising the volume at the entrance of the house.




Designed based on symmetrical concept. The villa contains multi spaces for guests, families and friends. The choice of materials is suitable to the location and availability in the local market.





Situated in Sepang, only few kilometres away from KLIA, this multi purpose event hall comprises of one main hall and several other spaces that can be fully utilized into one big space depending on the need of the event.
This entire project is designed with maximum regards of the environment, sustainability approach as well as maximum practical spatial layouts and functionality.
Materials used are of local sourced and carefully selected to bring about a Malay nuance into the entire design while providing natural thermal comfort.






Our retail shop located in Mexico has been synchronised with the surrounding environment of a traditional market. The proposal focused on the practicality, and the client’s requirement.
Industrial style has been introduced with a touch of some modern elements, which make the shop approachable by locals. Timber, steel, and glass are the major materials of this proposal.
The project in approved for construction by the local authority, and to be finished in 2021






Copyright © 2024 Ecorizon Services - All Rights Reserved.